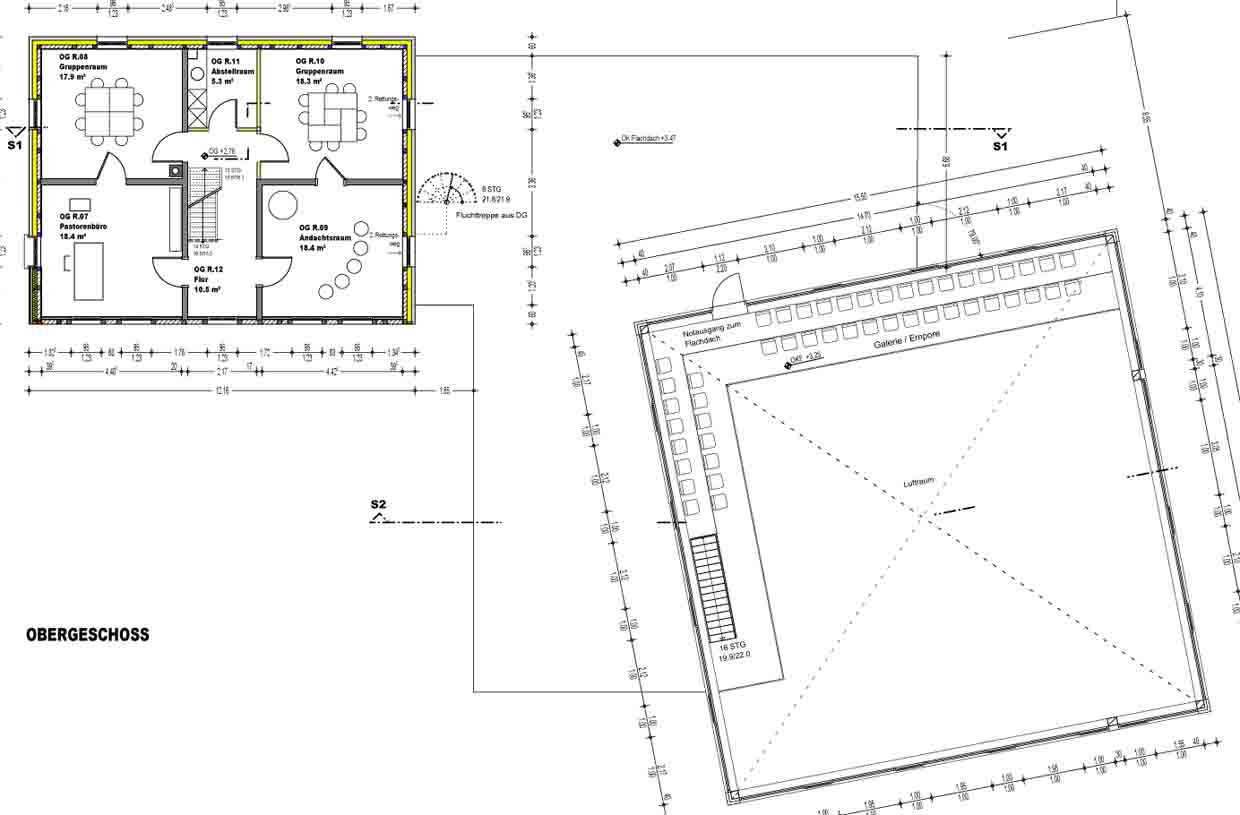
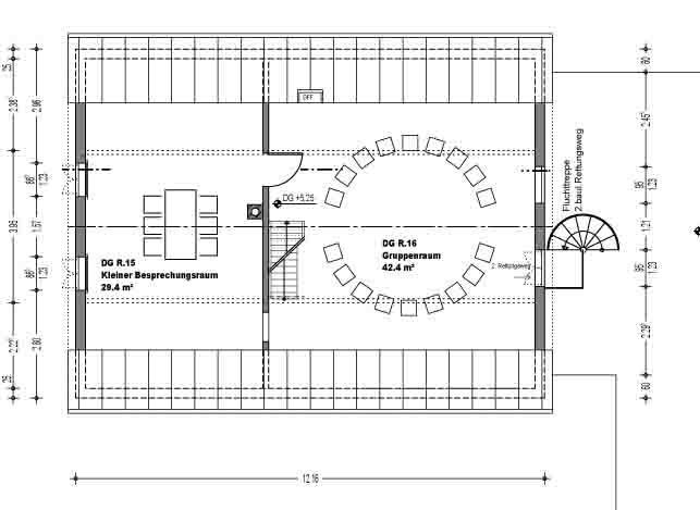
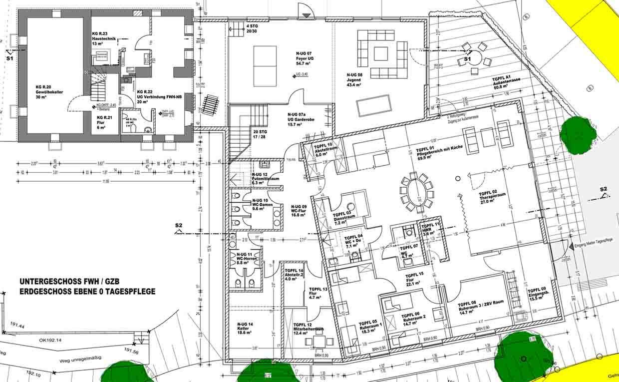
Bauvorhaben
Errichtung eines
Gemeindezentrums
Weiherstraße 5
51399 Burscheid

 

Bauherr
Freikirchliche evangelische
Gemeinde Burscheid
Höhestraße 38a
51399 Burscheid

 

Architekt
Dipl.-Ing. Michael Koppetsch
Pastor-Löh-Straße 78
51399 Burscheid
Tel 02174/7400868
Fax 02174/7400869
info(at)koppetsch-architekt.de

 

 

Kollekte online

 

Girocode mit eigener
Banking-App scannen
und online Spenden!